



Котедж
Честер
246 м²
8 соток
$ 270 600
Двоповерховий котедж в англійському стилі «Честер» загальною площею 246 м² має лаконічний та вишуканий дизайн. «Честер» підійде сім'ї з 4-6 чоловік. Він просторий і місткий, та задовольнить потреби найвимогливіших покупців.
На першому поверсі котеджу «Честер» розташовується велика кухня-вітальня 47 м² і хол 16 м², гостьова спальня, санвузол, гардеробна кімната, підсобне приміщення та великий гараж на 2 автомобілі 44 м².
Для зручності санвузли розташовані і на першому, і на другому поверсі.
На другому поверсі розташована master-bedroom 30 м² зі своєю вбиральнею, дві дитячі кімнати, гардеробна кімната, великий хол і дитячий санвузол.
Якщо ви вирішите купити цей будинок біля лісу та озера, ви отримаєте власний осередок затишку та комфорту.
ЗДАЧА КОТЕДЖУ В ЕКСПЛУАТАЦІЮ:
- з закінченими фасадними роботами.
- підсвічування по всьому периметру будинку.
- з встановленими вікнами і вхідними дверима.
- підведенням в будинок технічних мереж (вода, каналізація, електрика 18 кВТ).
- мощення декоративною плиткою.
- паркан.
.png)
2-й поверх
2.1 Хол - 17,92 м²
2.2 Санвузол - 5,09 м²
2.3 Дитяча спальня - 14,96 м²
2.4 Дитяча спальня - 15,33 м²
2.5 Санвузол - 6,35 м²
2.6 Господарська спальня - 29,35 м²
2.7 Гардеробна - 5,96 м²
Загалом: 94,96 м²
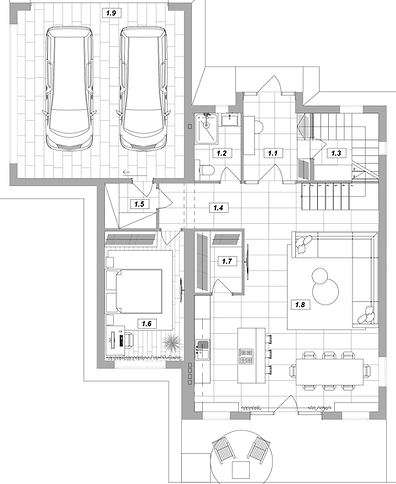
1-й поверх
1.1 Тамбур - 8,43 м²
1.2 Санвузол - 5,09 м²
1.3 Господарське приміщення - 7,06 м²
1.4 Хол - 15,73 м²
1.5 Гардеробна - 3,64 м²
1.6 Гостьова спальня - 15,86 м²
1.7 Комора - 4,56 м²
1.8 Кухня - вітальня - 47,78 м²
1.9 Гараж - 43,56 м²
Загалом: 151,71 м²
.png)
Загородный коттедж «Честер» в английском стиле привлечёт внимание стильным фасадом снаружи и продуманной планировкой внутри. Эта элитная недвижимость в Киевской области станет домом, в который всегда хочется возвращаться.
Ведь жить в коттеджном поселке возле озера – это круглогодичное наслаждение.
Компанія заснована професійними будівельниками в 1992 році.
Включає в себе більше ніж 100 співробітників. За 29 років накопичено величезний досвід реалізації проектів
різних рівнів складності.
08162, Київська обл., Києво-Святошинський р-н,
с.Круглик, вул. Озерна
(озеро Нижнє)
tel: +38 097 240 16 08
email: lakewood.kottage@gmail.com



